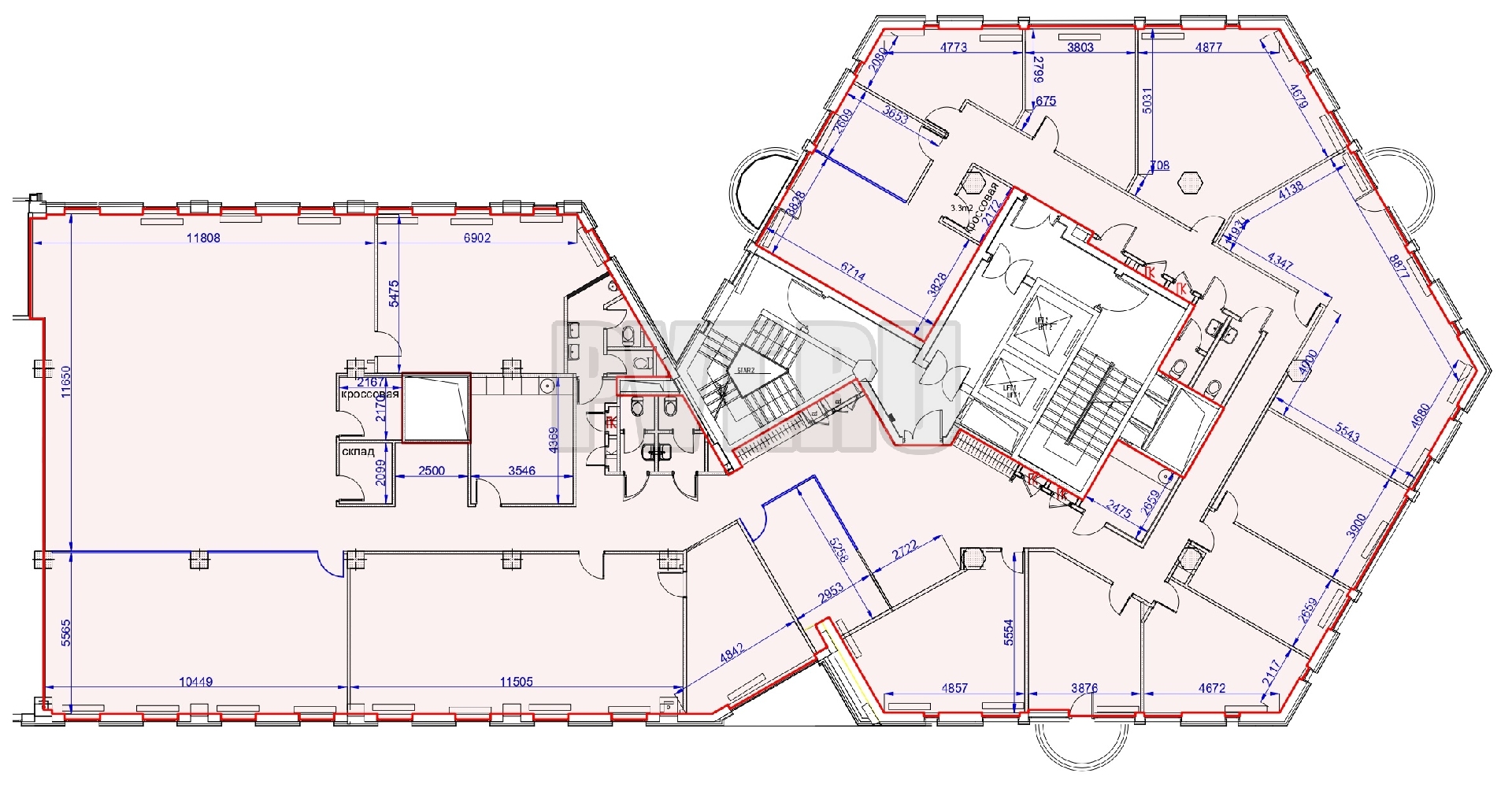
Офис, 881 м², кабинетная планировка, готово к въезду

3 941 005,99 ₽/мес.

53 679,99 ₽/м²/год

Связаться с нами

Коммерческие условия

Налогообложение

НДС

A

Класс

5

Налоговая

1998 г.

Год постройки

2009 г.

Год реконструкции

102 789,1 м²

Общая площадь

60 000 м²

Полезная площадь

15

Количество этажей

Вы можете записаться на просмотр интересующей вас площади